Ville in Costruzione via Nazioni Unite snc
Vivi il Tuo Sogno in una Villa Moderna e Luminosissima a Crotone – Quartiere Farina
Nel cuore del vivace quartiere Farina di Crotone, a due passi dai principali centri commerciali e situato in un contesto residenziale esclusivo, sorge un complesso di ville unifamiliari e bifamiliari che rappresenta il perfetto connubio tra design moderno e funzionalità.
Queste ville unifamiliari, immerse nella luce naturale grazie alla loro esposizione su tutti e quattro i lati cardinali, sono un rifugio perfetto per chi cerca spazio, comodità e un contatto diretto con la natura, pur rimanendo nel cuore della città.
Caratteristiche principali della villa unifamiliare:
– Superficie lotto: 400 mq, con ampio giardino privato che circonda la villa
– Struttura: Due livelli, con spazi ben distribuiti e una perfetta organizzazione degli ambienti
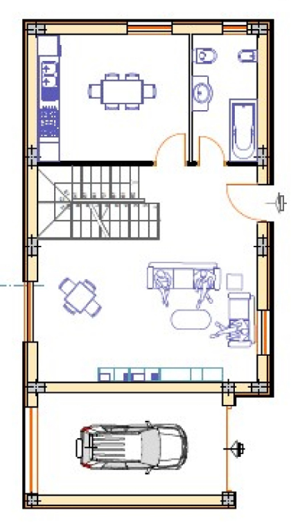
– Garage: 20 mq, con accesso diretto all’interno dell’abitazione
– Stile architettonico: Mediterraneo, lineare e cubico, che esprime solidità e armonia
Interni accoglienti e spazi aperti
Entrando nella villa, ci si trova accolti in un luminoso open space di oltre 40 mq, un ambiente ampio e versatile, ideale per ospitare momenti di relax o per riunire la famiglia. Le grandi finestre lasciano entrare una luce calda e naturale, creando una sensazione di continuità tra l’interno e il verde esterno. Dal soggiorno si accede facilmente al giardino privato, uno spazio dove puoi vivere momenti di serenità, organizzare cene all’aperto o semplicemente rilassarti con la famiglia.
La cucina abitabile con balcone, spaziosa e moderna, è il luogo ideale per dare vita a pranzi e cene indimenticabili. Un bagno di servizio e un pratico ripostiglio sottoscala completano il piano terra, rendendolo funzionale per tutte le esigenze quotidiane.
Al centro della casa, protagonista indiscussa, troviamo una splendida scala a doppia rampa, che con la sua eleganza guida al piano superiore, dedicato alla zona notte.
Zona notte: intimità e comfort
Il piano superiore offre 75 mq di puro comfort. Le tre camere da letto, di cui due di oltre 12 mq e la spaziosa camera matrimoniale di 16 mq, sono pensate per offrire a ogni membro della famiglia il massimo della privacy e della comodità. Le ampie finestre garantiscono una luminosità costante in ogni momento della giornata.
Il terrazzo di 20 mq, accessibile dal piano notte, è uno spazio perfetto per iniziare la giornata con una colazione all’aperto o per ammirare il tramonto in totale relax. Un piccolo balcone, con vista sul cancello della proprietà, offre un’ulteriore nota di funzionalità.
A completare questo livello troviamo un secondo bagno ampio e curato nei dettagli, che si inserisce armoniosamente nella disposizione degli ambienti.
Uno stile di vita esclusivo
Queste ville, con la loro architettura razionale e armoniosa, sono studiate per chi desidera vivere in un ambiente che coniuga il massimo del comfort con un design moderno e accattivante. Gli ampi spazi e la luminosità sono i veri protagonisti di queste case, ideali per famiglie numerose o per chi ama ospitare.
La struttura mediterranea cubica delle ville si sposa perfettamente con le esigenze di chi cerca spazi ampi e ben organizzati, dove ogni dettaglio è pensato per massimizzare la vivibilità.
Posizione strategica
Situate in via Nazioni Unite, a ridosso dei principali servizi commerciali come l’ex PAM (oggi IPERSISA), queste ville offrono una posizione ideale per chi desidera vivere in un contesto tranquillo ma allo stesso tempo vicino a tutto ciò di cui si ha bisogno. Il quartiere è ottimamente collegato e offre facile accesso a scuole, negozi, supermercati e servizi pubblici.
Per chi sono pensate queste ville
Queste ville sono perfette per famiglie che desiderano spazi ampi e luminosi, dove ogni membro ha la propria privacy senza rinunciare alla convivialità.
Ci sono diverse soluzioni a partire da € 187.000.

































